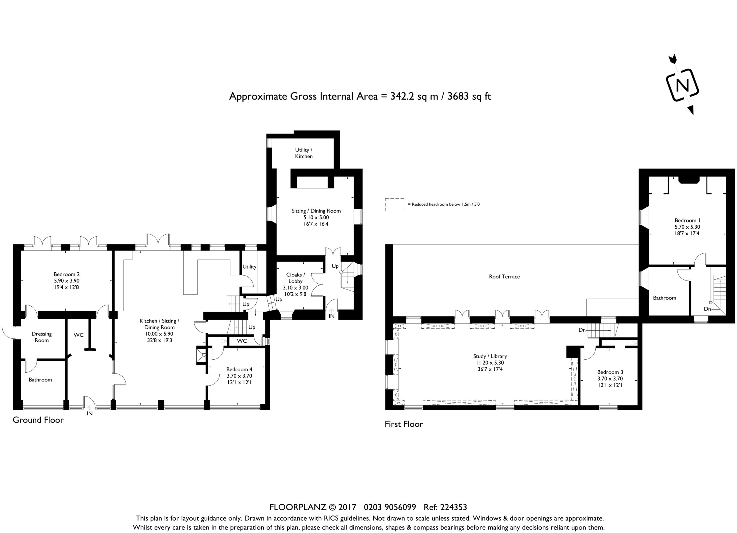
Middle Street, Misterton

This property is no longer available

We have other properties that are currently available, please continue your search or get in touch to let us know what you are looking for.

SEARCH PROPERTIES

Stamp Duty Calculator

Register with us

Please complete the form below and one of us will be in touch shortly.

    *required

    Would you like a valuation?*

    Make an enquiry

    Make an enquiry

    Please complete the form below and one of the Directors will be in touch shortly.

      *required

      PREFERRED CONTACT METHOD

      Make an enquiry