Hugglers Hole, Semley
Property Features
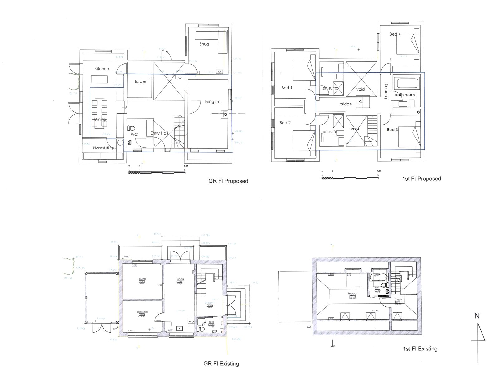
- Kitchen/Dining Room
- Open plan Sitting Room
- Ground Floor double Bedroom & Shower Room
- First Floor double Bedroom & Study area
- Bathroom
- Attached Store
- Driveway & Parking
- Orchard, Garden Curtilage & Field
- In all about 1.5 acres
- (Consent to create c. 2,400 sq ft house PL/2025/08504)
Description
A delightful country property set in c. 1.5 acres, with consent to create an attractive family house.
PROPERTY
Currently serving as ancillary accommodation to nearby Langlands, a handsome Georgian-style property, Laurel Cottage was granted approval for separate residential occupation in October 2025 and now has planning consent to create a good, four bedroom house of approx.. 2,400 sq ft. With a separate driveway and about 1.5 acres of curtilage and pasture, this property presents a rare opportunity in the area.
Laurel Cottage is constructed of stone, rendered and clad elevations under a slate roof and is beautifully presented as it is, having for some enough accommodation for a lovely rural bolthole, but planning consent has now opened up the possibility of either following the approved plans, or creating a more modest residence to suit individual budget and requirements.
OUTSIDE
Laurel Cottage is approached via a stone-pillared entrance to its own drive and parking area. It is envisaged that a dividing hedge will be planted to provide privacy for both it and neighbouring Langlands. Laurel hedging and mature broadleaf trees in a lawned area lines the southern boundary and there are fruit trees to the west, while beyond the immediate garden curtilage lies a most attractive block of pasture, elevating to the west and including a wild pond surrounded by ash.
A good-sized store is attached to the property and compost bins lie behind the stone entrance.
SITUATION
Laurel Cottage is situated in a gently undulating landscape on the Wiltshire/Dorset border close to the village of Semley, this popular village has a community run shop, a primary school, church and pub. Motcombe village is down the hill from the property, and this is also a thriving village with amenities. The nearby towns of Shaftesbury and Gillingham offer a more comprehensive range of shops and facilities, the latter benefitting from a Waitrose supermarket. The Saxon hilltop town of Shaftesbury is famous for the steep cobbled street of Gold Hill and Gillingham has a mainline railway station into London Waterloo.
The property is surrounded by beautiful countryside offering a variety of rural pursuits such as walking, riding and cycling as well as traditional field sports. There are golf courses at Salisbury, Tollard Royal, Warminster and Blandford, with horse racing at Bath, Salisbury and Wincanton. There are many places to visit in the local area such as Old Wardour Castle, Longleat, Sherborne Castle, Stourhead, Wilton House and Kingston Lacy.
The local road network gives ready access to other towns in the area including Bath, Dorchester, Poole, Salisbury, Sherborne, Warminster and Wincanton as well as to the south coast, while the A303 trunk road linking with the M3 and M25 motorways gives access to London and the West Country.
The area offers a wide range of schools, both state and private to include Port Regis, Clayesmore, Sandroyd, Sherborne Schools, Kings Bruton and Bryanston. Secondary schools in Gillingham and Shaftesbury with the Grammar schools in Salisbury.
DIRECTIONS
(SP7 9HG)
From the A350 just north of Shaftesbury, turn off signposted Motcombe and continue along this lane for about 0.25 mile. On the right will be a laural hedge, followed by a stone wall. Turn immediately right into the drive signed Landlands.
What3words: ///exactly.habits.trackers
TENURE
The tenure of the property is freehold.
SERVICES (currently shared)
Mains water and electricity, private sewage treatment plant, LPG heating & hot water.
LOCAL AUTHORITY
Wiltshire Council.
OUTGOINGS
The property will need to be registered for Council Tax.
EPC
D (66) – Please refer to the agents for the complete certificate.
BROADBAND
Wessex Fibre: Download 250Mbps
Upload 150Mbps.
PLANNING PERMISSIONS
Change of Use: PL/2025/02388
Extensions and Alterations: PL/2025/08504












