Rockbourne, Fordingbridge
Property Features
- Sitting Room, Family Room, Dining Room & Garden Room
- Spacious Kitchen/Breakfast Room
- Four Bedrooms & Three Bath/Shower Rooms
- Reception Hall, Rear Hall/Boot Room, Utility & Cloakroom
- Outbuidling: GUEST SUITE, Office/Gym, Storeroom, Garage
- 11.2 Acres Gardens, Grounds, Paddocks, Woodland & Ponds
- Lot 2: Two Bedroom Flat, One BedroomFlat, Barn/Workshop, Storage Barn & Yard
Description
A superb family home idyllically situated on the edge of a rural village with a potential annexe, outbuildings and paddocks. A courtyard with two apartments and two barns is available by separate negotiation.
A superb family home idylically situated on the edge of a rural village with a potential annexe, outbuildings and paddocks.
A courtyard with two apartments and two barns is available by separate negotiation (Lot 2).
LOT 1: Guide Price £1,800,000
DESCRIPTION
Marsh Barn is a most attractive country home with lovely light and airy elegant accommodation surrounded by beautifully landscaped grounds. Thought to date back to the 1700’s and originally built as an agricultural barn, it was sympathetically converted and extended in the late 20th Century with great care taken to retain and indeed enhance the original wooden beams and incorporate them into the new residence. This resulted in the creation of a fine rural home with plenty of character and interest as well as having easy flowing and generous family accommodation.
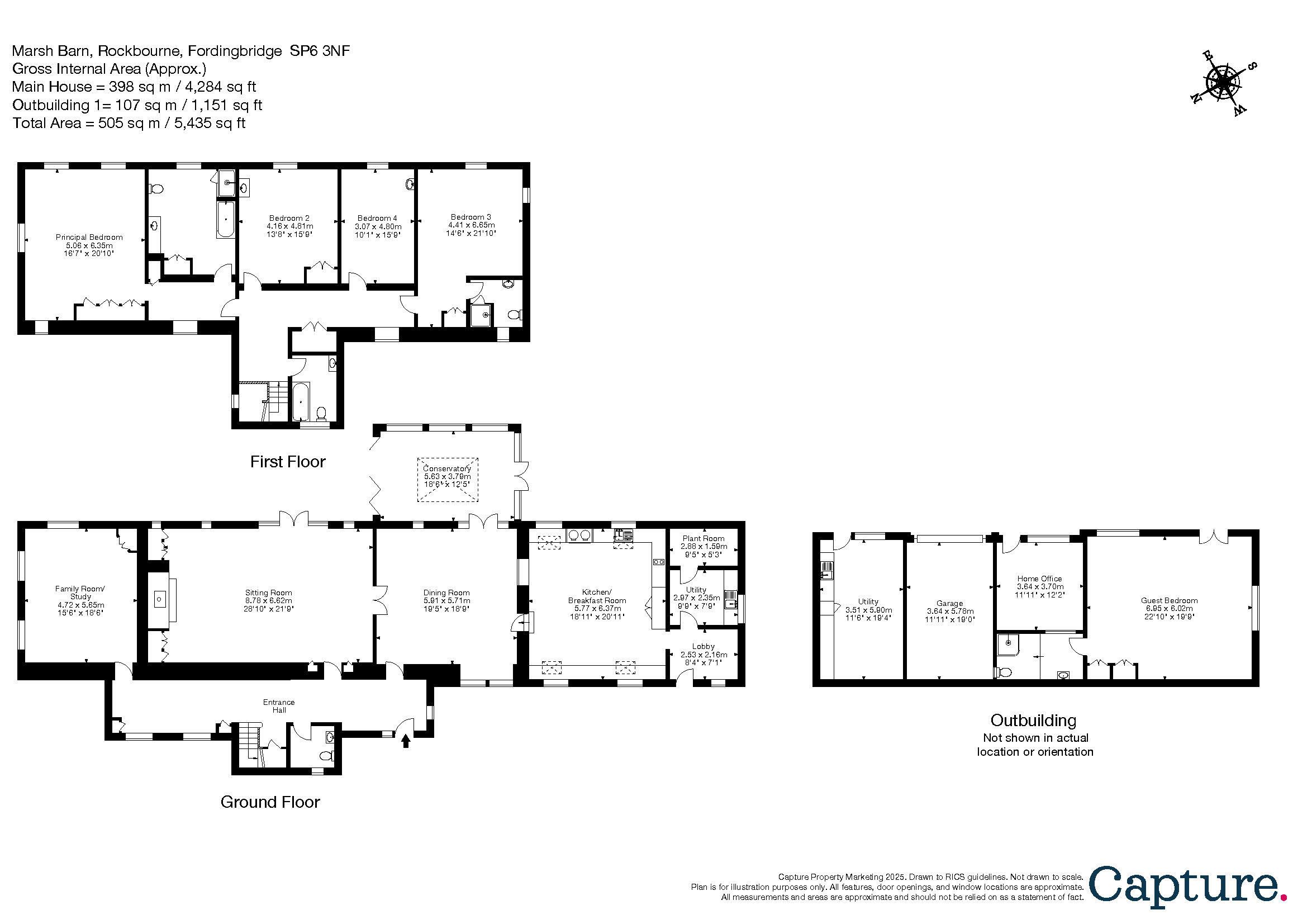
The ground floor has a good-sized reception hall, a large comfortable principal sitting room overlooking the garden, a family/second sitting room, a dining room ideal for entertaining and acting as a focal point for the house with its access to an oak framed garden room and the spacious kitchen/breakfast room which has a lovely vaulted and
beamed ceiling and a four-oven Aga. There is also a rear hall/boot room, utility room, plant room and cloakroom on this level.
On the first floor is a principal bedroom suite with a dressing lobby and en-suite bathroom, a guest bedroom with an en-suite shower room, two further double bedrooms
and a family bathroom. All the bedrooms enjoy fine Southeasterly views over the garden.
OUTBUILDING
Adjacent to the main house is an outbuilding which is made up of a number of useful spaces which could be adapted for a number of purposes and currently comprise a Guest Suite with a large bed/sitting room and an en-suite shower room and which if incorporated with the adjoining Office/Gym would make an excellent annexe. There is also a good-sized Storeroom and a Garage.
GROUNDS
The extensive grounds of Marsh Barn are a special feature of the property and start witha long gravelled drive running past a park like meadow to two areas of parking by the house. The gardens have been delightfully landscaped and are arranged to three sides with areas of lawn, attractively stocked herbaceous borders with a variety of flowers, shrubs and roses, a paved terrace ideal for al fresco dining, mature hedges and a mix of deciduous, conifer and ornamental trees.
Beyond the formal gardens are three well fenced and level paddocks with a field shelter/barn and two copses made up of mixed tree species and both having large ponds making
them ideal spots to enjoy the local wildlife. From the fields are lovely views across the neighbouring farmland to the woods beyond.
A public footpath runs across one of the fields.
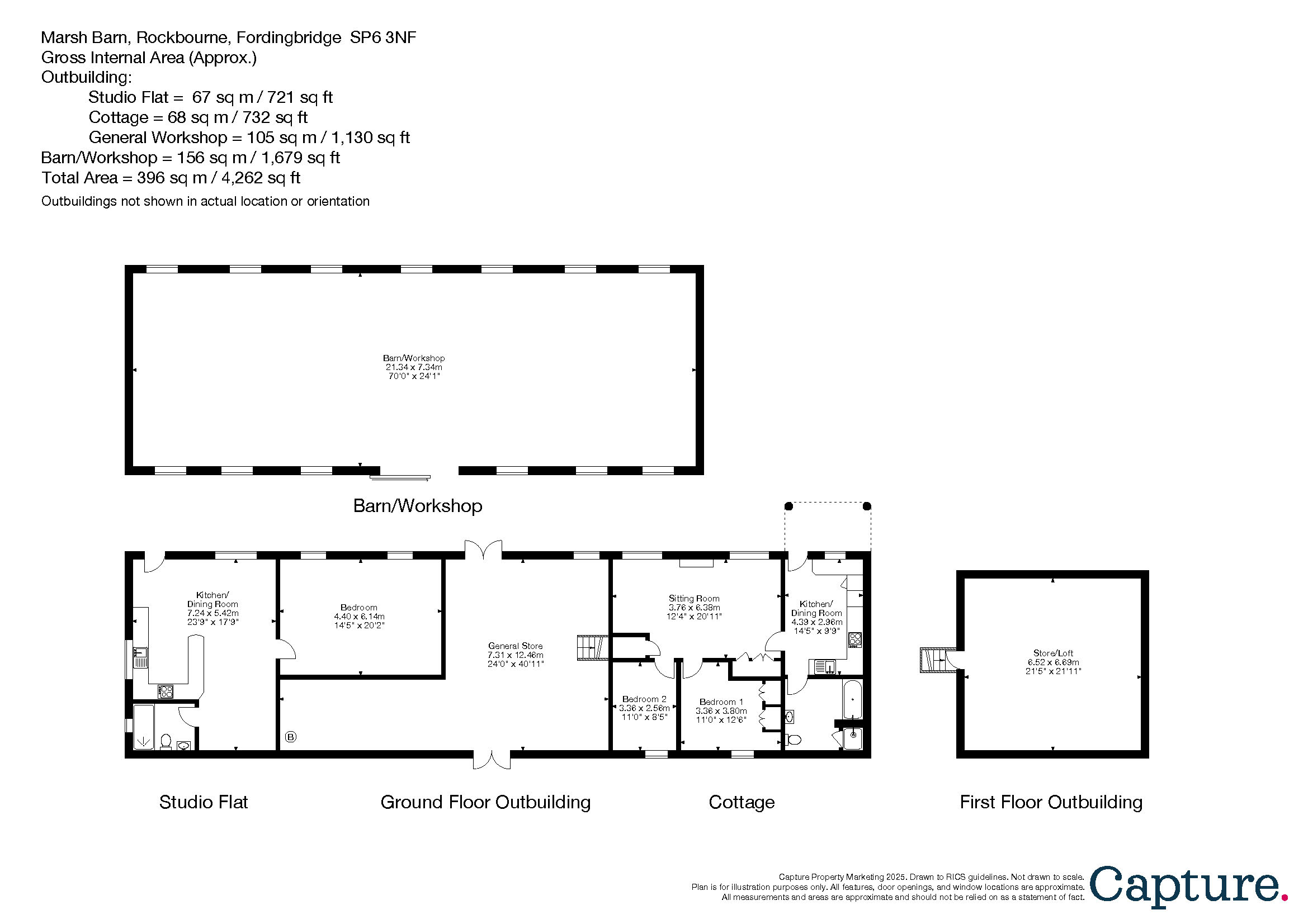
LOT 2 – AVAILABLE BY SEPARATE NEGOTIATION
Guide Pice £350,000
Leading off the entrance drive is a large gravelled courtyard with ample parking for several vehicles, raised flower and vegetable beds, greenhouse, areas of lawn and mature trees. One side of the yard is bordered by a good-sized (70’ x 24’, 21.34 x 7.34m) steel-framed Barn/Workshop with sliding doors and an inspection pit and on another side by a spacious Machinery/General Store with a mezzanine storage area and on either side are two areas of ancillary accommodation comprising:
The Cottage:
Sitting room, kitchen/dining room, two bedrooms, bathroom with separate shower and a private garden.
The Studio Flat:
Open plan Kitchen/Sitting/Dining Room, Bedroom and Bathroom.
SITUATION
Marsh Barn is located in an idyllic setting surrounded by fields on the edge of the picturesque village of Rockbourne which is known for its pretty chocolate-box cottages and houses, attractive stream and thatched dining inn; The Rose and Thistle. The village also has an active village hall, popular primary school, parish church with Saxon origins and a large Roman villa complex with well-preserved mosaics. There is a post office/shop two miles away at Sandleheath with a wider range of shops available in the riverside town of Fordingbridge, the market town of Ringwood and the medieval cathedral city of Salisbury. The latter also has arts and leisure facilities, a district hospital and a station
with mainline rail services to London (Waterloo) and the West Country. The local road network provides access to the other main towns in the area including the Bournemouth/
Christchurch/Poole conurbation and Southampton.
Rockbourne is one of the four desirable villages that make up the parish of Western Downland, part of the Cranborne Chase National Landscape which is admired for its beautiful undulating countryside and being an International Dark Skies Reserve. The open expanse, wildlife and spectacular scenery of the New Forest National Park is just 5.5 miles away whilst the beaches and sea sports of the South Coast are a 20-mile drive.
Many families are attracted to the area not just by the quality of rural life but also by the excellent selection of schools in both the state and private sectors, whether at junior or
senior level. These include Forres Sandle Manor, Moyles Court, The Burgate School & Sixth Form College, Bishops Wordsworth, South Wilts Grammer School, Godolphin and Chaffyn Grove amongst others.
Rockbourne is an ideal base from which to explore a variety of rural pursuits such as walking, riding and cycling as well as traditional field sports. The area is rich in places of interest such as Breamore House, Salisbury Cathedral, Kingston Lacey and Wilton House whilst Martin Down Nature Reserve is a wonderful haven for birdlife, insects and wildflowers.
TENURE The tenure of the property is freehold.
LOCAL AUTHORITY New Forest District Council
SERVICES Mains electricity & water, private drainage,
oil fired heating & hot water
BROADBAND
Standard 28Mbps, Ultrafast 1,000Mbps (Ofcom)
OUTGOINGS
The property is subject to: Council Tax Band H.
ENERGY PERFORMANCE CERTIFICATE E (46) – Please refer to the agents for the complete certificate
FIXURES AND FITTINGS Please note that, unless specifically
mentioned, all fixtures and fittings and garden ornaments are excluded from the sale.
VIEWINGS Viewing by appointment with agents
Rural View.


























